توجه                                                                                                             توجه

خواهشمند است در سفارش کابینت به موارد زیر توجه کنید:

1. در محاسبات تولید ارتفاع پایه محاسبه نمی شود و باید ارتفاع دقیق کابین درج گردد.

2. بدنه به صورت تمام پیچی و منتاژ شده ارسال می گردد .

3. به همراه بدنه پایه پلاستیکی و پین طبقه نیز ارسال نمی گردد.

4. کلیه سفارشات با نوار PVC  به ضخامت 1 میل تولید می گردد.

5. طبقه به قطعات متحرکی گفته میشود که توسط پین مخصوص در داخل کابین نصب می گردد.

6. درصورت انتخاب بدنه رنگی ، رنگ بدنه با کد و نام در توضیحات درج شود.


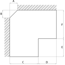
 جنس : نوع : ارتفاع ( cm ) :
 : A (cm)  : B (cm)  : C (cm)
 : D (cm)  : E (cm)  : F (cm)
رنگ نوار لبه : تعداد طبقه : نحوه ارسال :
تعداد سفارش : قیمت واحد : ریال قیمت کل : ریال
توضیحات :
فایل ضمیمه :  (فایل ضمیمه با فرمت jpg ، jpeg و  gif)
         

سبد خرید
سبد خرید شما خالی است

ورود کاربران
نام کاربری :
کلمه عبور :
 
 
  رمز عبور را فراموش کرده ام؟
تماس با ما




آدرس : تهران. خ رسالت. خ فرجام خ سراج خ جهانشاهلو (سی متری دوم) پلاک 25
تلفن : 021-77890395
فاکس : 021-77890395
ایمیل : info@telkachoob.com
درباره ما
  • گروه تلکا یکی از بزرگترین تولیدکنندگان مصنوعات چوبی می باشد. اين مجموعه با بهره گيري از ماشين آلات مدرن و تمام اتوماتيك قادر به توليد مصنوعات چوبی در رنگ ها و طرح هاي متنوع با توجه به نياز مشتريان مي باشد.
© 2017 - Telkachoob | Development by Telka Corporation™